【おすすめ】【中古マンション】呉市広駅前1丁目物件番号:00000

  • 一般公開物件
  • 呉市広駅前1丁目
  • 3LDK
  • 88.87m2
  • 1900万円
【おすすめ】【中古マンション】呉市広駅前1丁目
◇◆◇2017年リフォーム済:浴室・キッチン・トイレ・全室クロス◇◆◇ 【ペット飼育可】JR広駅徒歩1分の生活に便利な駅近物件! セカンドハウスとして使っていたため、室内の状態良好です♪  ■3LDK ■オール電化マンション ■2面バルコニー ■駐車場:7000円~9000円/月 ▢ディオ呉広店/徒歩6分 ▢ザグザグ呉広店/徒歩5分 ▢ローソン呉広駅前店/徒歩1分 ▢白岳中学校/徒歩9分 ▢白岳小学校/徒歩4分 ▢とくふう幼稚園/徒歩19分

物件データ

【所在地情報】
住所 呉市広駅前1丁目 交通 JR呉線/広駅 徒歩1分
小学校区 白岳小学校 中学校区 白岳中学校
【価格情報】
価格 1900万円 駐車場 空有/7,000円
管理費 10,340円 修繕費 13,480円
その他負担金 - 負担金備考 -
【広さ・バルコニー】
面積 88.87m²(26.8坪) バルコニー 9.41m²
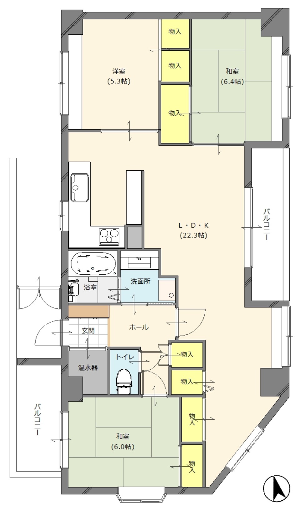
間取 3LDK(LDK22.3畳1室/和室6.4畳1室/和室6畳1室/洋室5.3畳1室)
【建物】
完成(予定) 2001年(平成13年)02月 構造 RC
階数 地上9階
リフォーム -
管理形態 全部委託 管理方式 日勤
管理会社 三菱地所コミュニティ(株)
【現況・設備情報】
現況 居住中 明け渡し 相談
利用用途 - 特記事項 -
設備 - その他 用途地域:近隣商業
  • 会員のみに公開される物件情報多数!
  • もっとたくさんの物件情報をゲット!