物件詳細
【中古マンション】呉市三条1丁目物件番号:44479
- 一般公開物件
- 呉市三条1丁目
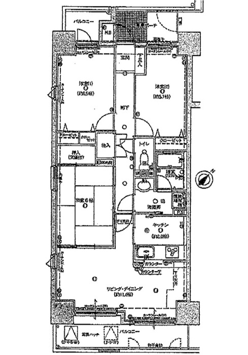
- 3LDK
- 69.03m2
- 1550万円
LD掃出し窓 窓リノベ「まど断熱」(省エネ・部位ラベル発行します)
遮熱カーテン キッチン・天板人工大理石 畳、琉球風に交換
温水洗浄便座 バス追い焚き バリアフリー 宅配ボックス
バルコニーから呉湾の花火大会が見えます
瑕疵保険(住宅ローン減税対応)
物件データ
【所在地情報】
| 住所 | 呉市三条1丁目 | 交通 | JR呉線/呉駅 徒歩14分 三条1丁目バス停 徒歩2分 |
|---|---|---|---|
| 小学校区 | 両城小学校 | 中学校区 | 両城中学校 |
【価格情報】
| 価格 | 1550万円 | 駐車場 | 空有/8,300円 |
|---|---|---|---|
| 管理費 | 7,840円 | 修繕費 | 21,040円 |
| その他負担金 | - | 負担金備考 | 別途、瑕疵保険料60,000円要 防犯対策費:800円/月 令和6年度固定資産税・都市計画税134,283円 |
【広さ・バルコニー】
| 面積 | 69.03m²(20.8坪) | バルコニー | 11.56m² |
|---|---|---|---|
| 間取 | 3LDK(LD11.4畳1室/K3畳1室/洋室6.5畳1室/和室6畳1室/洋室5.7畳1室) | ||
【建物】
| 完成(予定) | 1998年(平成10年)09月 | 構造 | - |
|---|---|---|---|
| 階数 | 地上13階 | ||
| リフォーム | - | ||
| 管理形態 | 全部委託 | 管理方式 | 日勤 |
| 管理会社 | (株)合人社計画研究所 | ||
【現況・設備情報】
| 現況 | 空家 | 明け渡し | 相談 |
|---|---|---|---|
| 利用用途 | - | 特記事項 | - |
| 設備 | 都市ガス | その他 | 用途地域:近隣商業 壁芯専有面積:72.56㎡(約21.94坪) 専用ポーチ:4.29㎡(約1.29坪) |
- 会員のみに公開される物件情報多数!
- もっとたくさんの物件情報をゲット!



























