物件詳細
【中古戸建】呉市本通6丁目物件番号:61647
- 一般公開物件
- 呉市本通6丁目
- 1SLDK
- 110.98m2(33.5坪)
- 2680万円
駐車1台可
物件データ
【所在地情報】
| 住所 | 呉市本通6丁目 | 交通 | 本通6丁目バス停 徒歩1分 |
|---|---|---|---|
| 小学校区 | 本通小学校 | 中学校区 | 和庄中学校 |
【価格情報】
| 価格 | 2680万円 | 坪単価 | 158万円 |
|---|---|---|---|
| その他負担金 | - | 負担金備考 | - |
【土地・道路】
| 土地面積 | 59.50m²(17.9坪) | 建築条件 | - |
|---|---|---|---|
| 接道 | 北西側 公道 道路幅約36m |
私道 | - |
| セットバック | - |
【建物】
| 完成(予定) | 2002年(平成14年)03月 | 構造 | 軽量鉄骨 |
|---|---|---|---|
| 建物面積 | 110.98m²(33.5坪) | ||
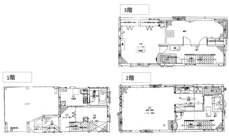
| 間取 | 1SLDK(1階S1室/2階LDK16.9畳1室/3階洋室8.7畳1室/3階S1室) | ||
| 階数 | 地上3階 | ||
| リフォーム | - | ||
【権利情報】
| 土地権利 | 所有権 | 借地権割合 | - |
|---|---|---|---|
| 借地料 | - | 権利金 | - |
| 借地期間 | - |
【制限事項】
| 都市計画 | - | 建築許可理由 | - |
|---|---|---|---|
| 建ぺい率 | 80% | 容積率 | 300% |
| 用途地域 | 近隣商業 | 地目 | - |
| 最適用途 | - | 建築条件 | - |
| その他規制 | - |
【現況・設備情報】
| 現況 | 空家 | 明け渡し | 相談 |
|---|---|---|---|
| 利用用途 | - | 特記事項 | - |
| 設備 | 上水道 | その他 | - |
- 会員のみに公開される物件情報多数!
- もっとたくさんの物件情報をゲット!





















