【新築戸建】呉市八幡町物件番号:35388
- 一般公開物件
- 呉市八幡町
- 4LDK
- 99.98m2(30.2坪)
- 3780万円
準防火仕様 制振ダンパー(住友ゴムMAMORY) 2台駐車可能
フラット35S(金利Bプラン)対応 都市ガス(エコジョーズ) 外構付
瑕疵担保責任保険(まもりすまい保険) 食器洗乾燥機
ガス乾燥機付(リンナイ乾太君) 3口ガスコンロ(グリル付)
浴室乾燥機能 1階・2階ウォシュレットトイレ オールLow-Eペアガラス
アルミ樹脂複合サッシ 玄関ドア電子錠 小上がりのあるタタミコーナー
物件データ
【所在地情報】
| 住所 |
呉市八幡町 |
交通 |
JR呉線/呉駅 徒歩15分
四道路バス停 徒歩4分
|
| 小学校区 |
和庄小学校 |
中学校区 |
和庄中学校 |
【価格情報】
| 価格 |
3780万円 |
坪単価 |
126万円 |
| その他負担金 |
- |
負担金備考 |
- |
【土地・道路】
| 土地面積 |
99.97m²(30.2坪) |
建築条件 |
- |
| 接道 |
南西側 道路幅約3.95m
|
私道 |
- |
| セットバック |
- |
|
|
【建物】
| 完成(予定) |
2025年(令和7年)07月 |
構造 |
- |
| 建物面積 |
99.98m²(30.2坪) |
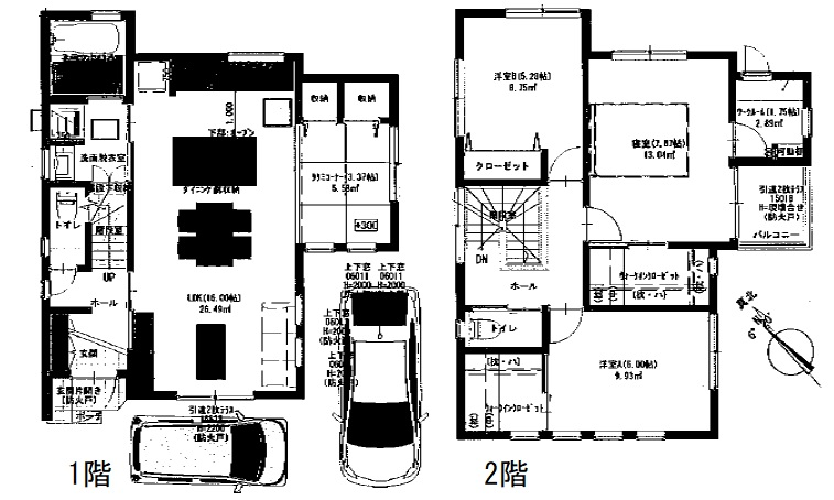
| 間取 |
4LDK ワークルーム(1.75帖)(1階LDK16畳1室/1階和室3.37畳1室/2階洋室7.87畳1室/2階洋室6畳1室/2階洋室5.28畳1室/2階WIC2室) |
| 階数 |
地上2階 |
| リフォーム |
- |
【権利情報】
| 土地権利 |
所有権 |
借地権割合 |
- |
| 借地料 |
- |
権利金 |
- |
| 借地期間 |
- |
|
|
【制限事項】
| 都市計画 |
- |
建築許可理由 |
- |
| 建ぺい率 |
60% |
容積率 |
160% |
| 用途地域 |
1種住居 |
地目 |
- |
| 最適用途 |
- |
建築条件 |
- |
| その他規制 |
- |
|
|
【現況・設備情報】
| 現況 |
- |
明け渡し |
相談 |
| 利用用途 |
- |
特記事項 |
- |
| 設備 |
都市ガス/上水道/下水道 |
その他 |
Ⅱ型アイランドキッチン(ドゥーブルキッチン) 書斎(2階主寝室)
ウォークインクローゼット(2階主寝室・洋室A) 南向きバルコニー
建築確認:第R06認広建セ02465号 |