【新築戸建】呉市音戸町波多見3丁目物件番号:35691
- 一般公開物件
- 呉市音戸町波多見3丁目
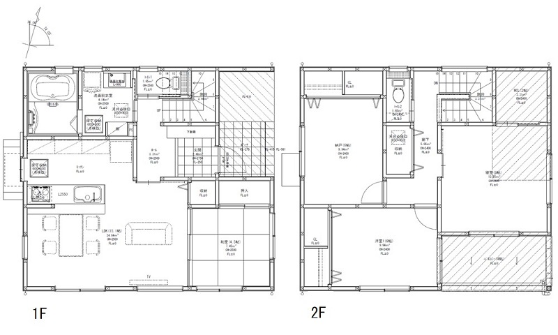
- 3SLDK
- 105.98m2(32.0坪)
- 1980万円
木造在来工法 省令準耐火構造 ベタ基礎
フラット35S(Bプラン)対応 オール電化住宅
エコキュート IHクッキングヒーター
食器洗浄乾燥機 居室窓Low-Eペアガラス
玄関電気錠システム EV自動車用回路
浴室換気乾燥暖房機 トイレ洗浄便座 小学校徒歩11分
駐車2台可
物件データ
【所在地情報】
| 住所 |
呉市音戸町波多見3丁目 |
交通 |
水産海洋技術センター入口バス停 徒歩1分
|
| 小学校区 |
波多見小学校 |
中学校区 |
音戸中学校 |
【価格情報】
| 価格 |
1980万円 |
坪単価 |
40万円 |
| その他負担金 |
- |
負担金備考 |
水道負担金別途要:13.2万円 |
【土地・道路】
| 土地面積 |
165.96m²(50.2坪) |
建築条件 |
- |
| 接道 |
南側 公道 道路幅約2.3m
東側 道路幅約10m
|
私道 |
- |
| セットバック |
- |
|
|
【建物】
| 完成(予定) |
2024年(令和6年)06月 |
構造 |
- |
| 建物面積 |
105.98m²(32.0坪) |
| 間取 |
3SLDK(1階LDK15.1畳1室/1階和室4.5畳1室/2階洋室8畳1室/2階洋室6畳1室/2階S6畳1室/2階WIC2畳1室) |
| 階数 |
地上2階 |
| リフォーム |
- |
【権利情報】
| 土地権利 |
所有権 |
借地権割合 |
- |
| 借地料 |
- |
権利金 |
- |
| 借地期間 |
- |
|
|
【制限事項】
| 都市計画 |
非線引区域 |
建築許可理由 |
- |
| 建ぺい率 |
70% |
容積率 |
400% |
| 用途地域 |
- |
地目 |
- |
| 最適用途 |
- |
建築条件 |
- |
| その他規制 |
急傾斜地警戒区域 |
|
|
【現況・設備情報】
| 現況 |
- |
明け渡し |
相談 |
| 利用用途 |
- |
特記事項 |
- |
| 設備 |
上水道/浄化槽 |
その他 |
セットバック済
建築確認:JE23BA1-34-0039 |