【新築戸建】呉市広杭本町物件番号:35507
- 一般公開物件
- 呉市広杭本町
- 4LDK
- 115.80m2(35.0坪)
- 3390万円
広小学校前の好立地 駐車3台(車種による) ビルトインガレージ
オール電化 対面式システムキッチン 吹抜け フラット35Sに対応
スーパー・小学校徒歩10分以内 駅まで平坦 地盤調査済
省エネ給湯器 IHクッキングヒーター 陽当り・通風良好
シャワー付洗面化粧台 オートバス TVモニタ付インターホン
食器洗乾燥機 温水洗浄便座 閑静な住宅地 角地
物件データ
【所在地情報】
| 住所 |
呉市広杭本町 |
交通 |
JR呉線/広駅 徒歩18分
広小学校前バス停 徒歩2分
|
| 小学校区 |
広小学校 |
中学校区 |
広中央中学校 |
【価格情報】
| 価格 |
3390万円 |
坪単価 |
141万円 |
| その他負担金 |
- |
負担金備考 |
- |
【土地・道路】
| 土地面積 |
82.15m²(24.8坪) |
建築条件 |
- |
| 接道 |
北東側 道路幅約5.8m 間口6.1m
|
私道 |
- |
| セットバック |
- |
|
|
【建物】
| 完成(予定) |
2025年(令和7年)06月 |
構造 |
- |
| 建物面積 |
115.80m²(35.0坪) |
| 間取 |
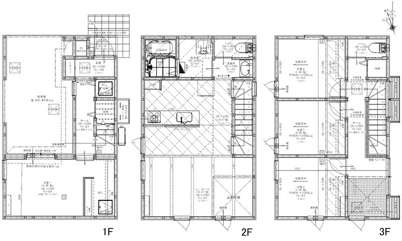
4LDK 吹抜け(1階洋室6.09畳1室/1階WIC1室/2階LDK16.27畳1室/3階洋室5.06畳2室/3階洋室4.64畳1室) |
| 階数 |
地上3階 |
| リフォーム |
- |
【権利情報】
| 土地権利 |
所有権 |
借地権割合 |
- |
| 借地料 |
- |
権利金 |
- |
| 借地期間 |
- |
|
|
【制限事項】
| 都市計画 |
- |
建築許可理由 |
- |
| 建ぺい率 |
60% |
容積率 |
200% |
| 用途地域 |
1種中高 |
地目 |
- |
| 最適用途 |
- |
建築条件 |
- |
| その他規制 |
景観法による規制有・宅地造成工事規制区域・景観地区 |
|
|
【現況・設備情報】
| 現況 |
- |
明け渡し |
相談 |
| 利用用途 |
- |
特記事項 |
- |
| 設備 |
上水道/下水道 |
その他 |
表記建物面積に、1階車庫15.67㎡含む
建築確認:R06認広建セ02311 |