物件詳細
【新築戸建】呉市広弁天橋町物件番号:35415
- 一般公開物件
- 呉市広弁天橋町
- 3SLDK
- 98.57m2(29.8坪)
- 3080万円
トータテハウジング施工 外構付 瑕疵担保保険付
フラット35S使用可能(但し、期限内に限ります)
カップボードあり
物件データ
【所在地情報】
| 住所 | 呉市広弁天橋町 | 交通 | JR呉線/新広駅 徒歩26分 弁天橋バス停 徒歩3分 |
|---|---|---|---|
| 小学校区 | 三坂地小学校 | 中学校区 | 広中央中学校 |
【価格情報】
| 価格 | 3080万円 | 坪単価 | 103万円 |
|---|---|---|---|
| その他負担金 | - | 負担金備考 | - |
【土地・道路】
| 土地面積 | 100.69m²(30.4坪) | 建築条件 | - |
|---|---|---|---|
| 接道 | 南東側 公道 道路幅約4.63m |
私道 | - |
| セットバック | - |
【建物】
| 完成(予定) | 2024年(令和6年)09月 | 構造 | - |
|---|---|---|---|
| 建物面積 | 98.57m²(29.8坪) | ||
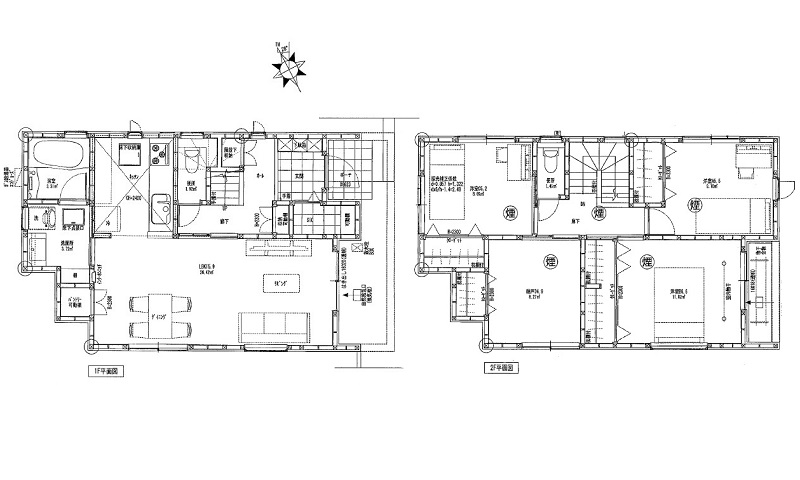
| 間取 | 3SLDK SIC(1階LDK15.9畳1室/2階洋室6.6畳1室/2階洋室5.5畳1室/2階洋室5.2畳1室/2階S4.9畳1室) | ||
| 階数 | 地上2階 | ||
| リフォーム | - | ||
【権利情報】
| 土地権利 | 所有権 | 借地権割合 | - |
|---|---|---|---|
| 借地料 | - | 権利金 | - |
| 借地期間 | - |
【制限事項】
| 都市計画 | - | 建築許可理由 | - |
|---|---|---|---|
| 建ぺい率 | 60% | 容積率 | 185% |
| 用途地域 | 1種中高 | 地目 | - |
| 最適用途 | - | 建築条件 | - |
| その他規制 | - |
【現況・設備情報】
| 現況 | - | 明け渡し | 相談 |
|---|---|---|---|
| 利用用途 | - | 特記事項 | - |
| 設備 | 都市ガス/上水道/下水道 | その他 | 既存建物基礎残置あり 建築確認:R06認広建セ00242 |
- 会員のみに公開される物件情報多数!
- もっとたくさんの物件情報をゲット!



























