物件詳細
【売店舗】呉市郷原町物件番号:62182
- 一般公開物件
- 呉市呉市郷原町
- 204.74m2(61.9坪)
- 1800万円
売店舗
駐車スペース10台以上
物件データ
【所在地情報】
| 住所 | 呉市呉市郷原町 | 交通 | 浜田橋バス停 徒歩2分 |
|---|---|---|---|
| 小学校区 | 郷原小学校 | 中学校区 | 郷原中学校 |
【価格情報】
| 価格 | 1800万円 | 坪単価 | 13万円 |
|---|---|---|---|
| その他負担金 | - | 負担金備考 | - |
【土地・道路】
| 土地面積 | 449.90m²(136.0坪) | 建築条件 | - |
|---|---|---|---|
| 接道 | 南東側 公道 道路幅約8.3m 間口29m 南西側 道路幅約3m 間口17m 東側 道路幅約5.5m 間口5.5m |
私道 | - |
| セットバック | - |
【建物】
| 完成(予定) | 1985年(昭和60年)02月 | 構造 | - |
|---|---|---|---|
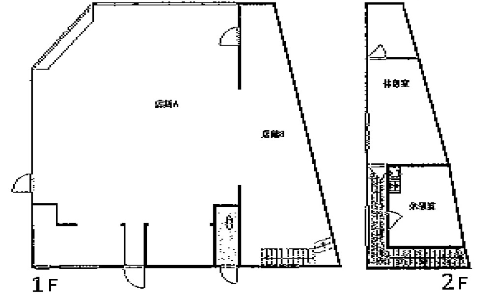
| 建物面積 | 204.74m²(61.9坪) | ||
| 間取 | - | ||
| 階数 | 地上2階 | ||
| リフォーム | - | ||
【権利情報】
| 土地権利 | 所有権 | 借地権割合 | - |
|---|---|---|---|
| 借地料 | - | 権利金 | - |
| 借地期間 | - |
【制限事項】
| 都市計画 | 調整区域 | 建築許可理由 | - |
|---|---|---|---|
| 建ぺい率 | 60% | 容積率 | 200% |
| 用途地域 | - | 地目 | - |
| 最適用途 | - | 建築条件 | - |
| その他規制 | 宅地造成工事規制区域・景観計画区域・景観づくり区域・土砂災害警戒区域(一部、特別警戒区域) |
【現況・設備情報】
| 現況 | 空家 | 明け渡し | 相談 |
|---|---|---|---|
| 利用用途 | - | 特記事項 | - |
| 設備 | 上水道/下水道 | その他 | 構造:木・鉄骨造亜鉛メッキ鋼板ぶき2階建 平成15年3月:一部取り壊し、増築 |
- 会員のみに公開される物件情報多数!
- もっとたくさんの物件情報をゲット!





















