【新築戸建】呉市広文化町物件番号:35747
- 一般公開物件
- 呉市広文化町
- 3SLDK
- 102.06m2(30.8坪)
- 3780万円
在来工法 施工:トータテハウジング 外構付
フラット35S使用可能(但し、期限内に限ります)
瑕疵担保保険付 カップボードあり 角地
駐車可
物件データ
【所在地情報】
| 住所 |
呉市広文化町 |
交通 |
JR呉線/新広駅 徒歩6分
広市民センターバス停 徒歩5分
|
| 小学校区 |
横路小学校 |
中学校区 |
横路中学校 |
【価格情報】
| 価格 |
3780万円 |
坪単価 |
118万円 |
| その他負担金 |
- |
負担金備考 |
- |
【土地・道路】
| 土地面積 |
107.21m²(32.4坪) |
建築条件 |
- |
| 接道 |
北側 公道 道路幅約3.95m
東側 公道 道路幅約4.4m
|
私道 |
- |
| セットバック |
- |
|
|
【建物】
| 完成(予定) |
2024年(令和6年)12月 |
構造 |
- |
| 建物面積 |
102.06m²(30.8坪) |
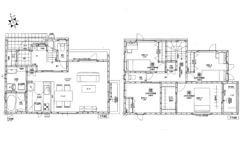
| 間取 |
3SLDK SIC・パントリー(1階LDK18畳1室/2階洋室6.75畳1室/2階洋室5.29畳2室/2階S4.71畳1室/2階WIC1室) |
| 階数 |
地上2階 |
| リフォーム |
- |
【権利情報】
| 土地権利 |
所有権 |
借地権割合 |
- |
| 借地料 |
- |
権利金 |
- |
| 借地期間 |
- |
|
|
【制限事項】
| 都市計画 |
- |
建築許可理由 |
- |
| 建ぺい率 |
60% |
容積率 |
200% |
| 用途地域 |
1種住居 |
地目 |
- |
| 最適用途 |
- |
建築条件 |
- |
| その他規制 |
- |
|
|
【現況・設備情報】
| 現況 |
- |
明け渡し |
相談 |
| 利用用途 |
- |
特記事項 |
- |
| 設備 |
都市ガス/上水道/下水道 |
その他 |
セットバック後の土地面積:106.83㎡
建築確認:第R06認広建セ00864号 |