【中古】呉市本通3丁目物件番号:54973
- 一般公開物件
- 呉市本通3丁目
- 514.90m2(155.7坪)
- 6800万円
売ビル 飲食店等に
全面改装済み(令和2年8月頃)
満室時想定賃収:634,000円/月 7,608,000円/年
満室時想定年利回り:11.18%
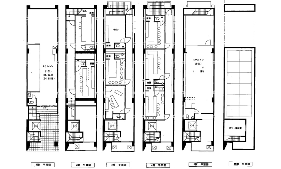
1・5階:スケルトン
2・3・4階:内装済み、備品付き
物件データ
【所在地情報】
| 住所 |
呉市本通3丁目 |
交通 |
本通3丁目 徒歩1分
|
| 小学校区 |
呉中央小学校 |
中学校区 |
呉中央中学校 |
【価格情報】
| 価格 |
6800万円 |
坪単価 |
155万円 |
| その他負担金 |
- |
負担金備考 |
- |
【土地・道路】
| 土地面積 |
148.66m²(44.9坪) |
建築条件 |
- |
| 接道 |
北東側
|
私道 |
- |
| セットバック |
- |
|
|
【建物】
| 完成(予定) |
1984年(昭和59年)03月 |
構造 |
RC |
| 建物面積 |
514.90m²(155.7坪) |
| 間取 |
- |
| 階数 |
地上5階 |
| リフォーム |
- |
【権利情報】
| 土地権利 |
所有権 |
借地権割合 |
- |
| 借地料 |
- |
権利金 |
- |
| 借地期間 |
- |
|
|
【制限事項】
| 都市計画 |
- |
建築許可理由 |
- |
| 建ぺい率 |
80% |
容積率 |
600% |
| 用途地域 |
商業 |
地目 |
- |
| 最適用途 |
- |
建築条件 |
- |
| その他規制 |
防火地域 |
|
|
【現況・設備情報】
| 現況 |
空家 |
明け渡し |
- |
| 利用用途 |
- |
特記事項 |
- |
| 設備 |
- |
その他 |
- |