【新築戸建】呉市伏原2丁目物件番号:35761
- 一般公開物件
- 呉市伏原2丁目
- 4LDK
- 107.51m2(32.5坪)
- 3980万円
住マイルハウス 旧呉市内中心部 オール電化
近づけば玄関ドア自動解錠(鍵所持者) 広いランドリールーム
壁掛けテレビ用フル装備(補強壁、コンセント、端子、HDMIコード、
壁掛金具、BC/CSアンテナ) 前面道路5.4mで駐車が簡単
全部屋東南向き 屋根裏部屋有(5LDK変更可)
ZEH水準省エネ住宅 フラット35S A利用可 省令準耐火建築
駐車2台可(車種による)
物件データ
【所在地情報】
| 住所 |
呉市伏原2丁目 |
交通 |
JR呉線/呉駅 徒歩30分
伏原2丁目バス停 徒歩3分
|
| 小学校区 |
明立小学校 |
中学校区 |
東畑中学校 |
【価格情報】
| 価格 |
3980万円 |
坪単価 |
133万円 |
| その他負担金 |
- |
負担金備考 |
水道負担金15万円・10年保証11万円別途必要 |
【土地・道路】
| 土地面積 |
100.52m²(30.4坪) |
建築条件 |
- |
| 接道 |
南東側 道路幅約5.4m
北西側 道路幅約3.4m
|
私道 |
- |
| セットバック |
- |
|
|
【建物】
| 完成(予定) |
2025年(令和7年)03月 |
構造 |
- |
| 建物面積 |
107.51m²(32.5坪) |
| 間取 |
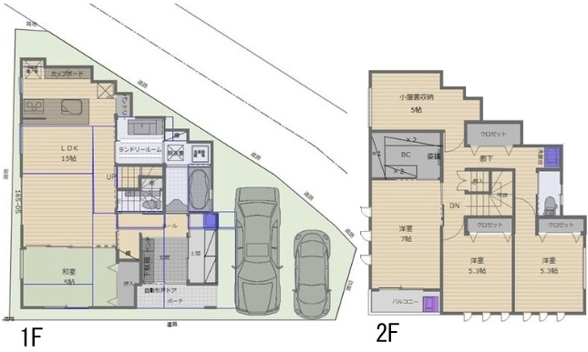
4LDK SIC・小屋裏収納(5帖)(1階LDK15畳1室/1階和室5畳1室/2階洋室7畳1室/2階洋室5.3畳2室/2階WIC1室) |
| 階数 |
地上2階 |
| リフォーム |
- |
【権利情報】
| 土地権利 |
所有権 |
借地権割合 |
- |
| 借地料 |
- |
権利金 |
- |
| 借地期間 |
- |
|
|
【制限事項】
| 都市計画 |
- |
建築許可理由 |
- |
| 建ぺい率 |
60% |
容積率 |
200% |
| 用途地域 |
1種中高 |
地目 |
- |
| 最適用途 |
- |
建築条件 |
- |
| その他規制 |
景観法による規制有 |
|
|
【現況・設備情報】
| 現況 |
- |
明け渡し |
相談 |
| 利用用途 |
- |
特記事項 |
- |
| 設備 |
上水道/下水道 |
その他 |
- |