物件詳細
【新築戸建】呉市焼山本庄2丁目物件番号:35795
- 一般公開物件
- 呉市焼山本庄2丁目
- 4LDK
- 110.96m2(33.5坪)
- 2780万円
フラット35S利用可
物件データ
【所在地情報】
| 住所 | 呉市焼山本庄2丁目 | 交通 | 本庄ハイツ中バス停 徒歩2分 |
|---|---|---|---|
| 小学校区 | 昭和北小学校 | 中学校区 | 昭和北中学校 |
【価格情報】
| 価格 | 2780万円 | 坪単価 | 71万円 |
|---|---|---|---|
| その他負担金 | - | 負担金備考 | - |
【土地・道路】
| 土地面積 | 132.16m²(39.9坪) | 建築条件 | - |
|---|---|---|---|
| 接道 | 北側 公道 道路幅約6.35m |
私道 | - |
| セットバック | - |
【建物】
| 完成(予定) | 2025年(令和7年)01月 | 構造 | - |
|---|---|---|---|
| 建物面積 | 110.96m²(33.5坪) | ||
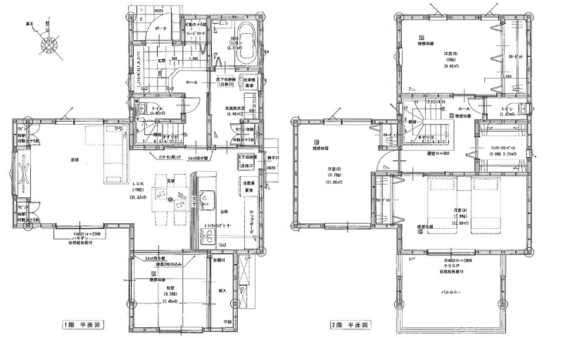
| 間取 | 4LDK SIC・ファミリークローク(2帖)(1階LDK19畳1室/1階和室4.5畳1室/2階洋室7.8畳1室/2階洋室6.7畳1室/2階洋室6畳1室) | ||
| 階数 | 地上2階 | ||
| リフォーム | - | ||
【権利情報】
| 土地権利 | 所有権 | 借地権割合 | - |
|---|---|---|---|
| 借地料 | - | 権利金 | - |
| 借地期間 | - |
【制限事項】
| 都市計画 | - | 建築許可理由 | - |
|---|---|---|---|
| 建ぺい率 | 50% | 容積率 | 100% |
| 用途地域 | 1種低層 | 地目 | - |
| 最適用途 | - | 建築条件 | - |
| その他規制 | - |
【現況・設備情報】
| 現況 | - | 明け渡し | 相談 |
|---|---|---|---|
| 利用用途 | - | 特記事項 | - |
| 設備 | - | その他 | 建築確認:第R06認広建セ00820号 |
- 会員のみに公開される物件情報多数!
- もっとたくさんの物件情報をゲット!



























