物件詳細
【新築戸建】呉市本通5丁目物件番号:35755
- 一般公開物件
- 呉市本通5丁目
- 3SLDK
- 99.79m2(30.1坪)
- 3700万円
システムキッチン モニター付インターホン
24時間換気システム 浴室換気暖房乾燥機
駐車可
物件データ
【所在地情報】
| 住所 | 呉市本通5丁目 | 交通 | 本通5丁目バス停 徒歩2分 |
|---|---|---|---|
| 小学校区 | 本通小学校 | 中学校区 | 和庄中学校 |
【価格情報】
| 価格 | 3700万円 | 坪単価 | 161万円 |
|---|---|---|---|
| その他負担金 | - | 負担金備考 | - |
【土地・道路】
| 土地面積 | 78.83m²(23.8坪) | 建築条件 | - |
|---|---|---|---|
| 接道 | 北東側 公道 道路幅約14.7m |
私道 | - |
| セットバック | - |
【建物】
| 完成(予定) | 2024年(令和6年)08月 | 構造 | - |
|---|---|---|---|
| 建物面積 | 99.79m²(30.1坪) | ||
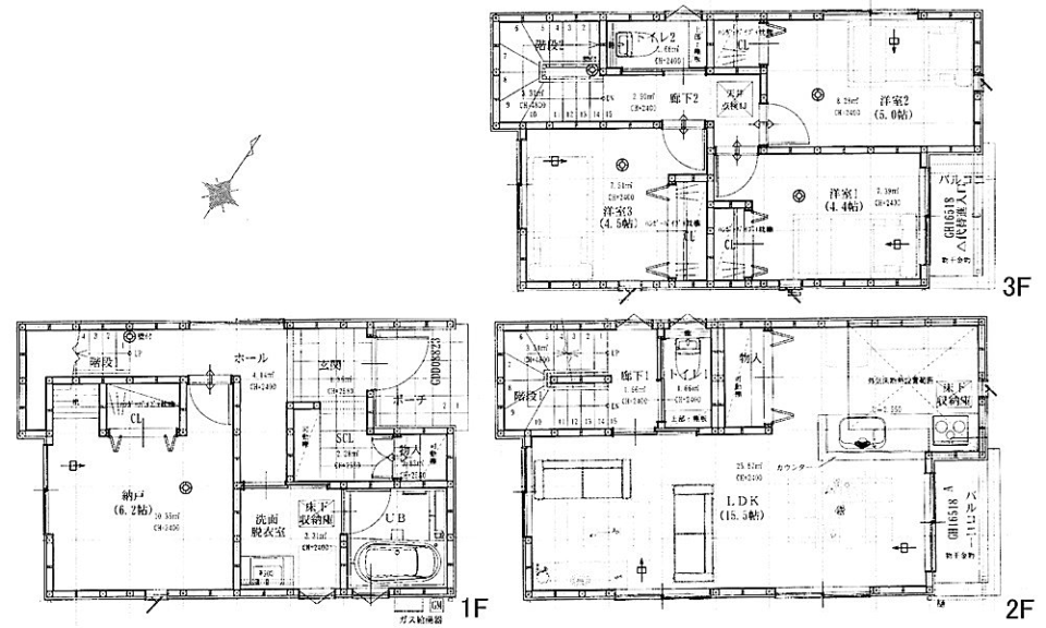
| 間取 | 3SLDK SIC・パントリー(1階S6.2畳1室/2階LDK15.5畳1室/3階洋室5畳1室/3階洋室4.5畳1室/3階洋室4.4畳1室) | ||
| 階数 | 地上3階 | ||
| リフォーム | - | ||
【権利情報】
| 土地権利 | 所有権 | 借地権割合 | - |
|---|---|---|---|
| 借地料 | - | 権利金 | - |
| 借地期間 | - |
【制限事項】
| 都市計画 | - | 建築許可理由 | - |
|---|---|---|---|
| 建ぺい率 | 80% | 容積率 | 400% |
| 用途地域 | 近隣商業 | 地目 | - |
| 最適用途 | - | 建築条件 | - |
| その他規制 | - |
【現況・設備情報】
| 現況 | - | 明け渡し | 相談 |
|---|---|---|---|
| 利用用途 | - | 特記事項 | - |
| 設備 | 都市ガス/上水道/下水道 | その他 | 建築確認:第R05確認建築呉市建指00105号 |
- 会員のみに公開される物件情報多数!
- もっとたくさんの物件情報をゲット!


























