【おすすめ】【新築戸建】呉市西辰川2丁目 No.3物件番号:36534
- 一般公開物件
- 呉市西辰川2丁目
- 4LDK
- 111.78m2(33.8坪)
- 3773万円
【2026年2月完成予定☆家事も暮らしもスムーズに、動線を考えた理想の住まい】
■全3区画分譲
■陽当たり良好・閑静な住宅地
■4LDK・駐車4台可
■対面式システムキッチン
■ユニットバス
■シャワー付洗面化粧台、シャワートイレ
■TVモニター付インターホン
■庭付き
▢アルゾSELECT呉東中央店/徒歩8分
▢セブンイレブン呉市郷町店/徒歩7分
▢ウォンツ呉片山店/徒歩12分
▢呉市立片山中学校/徒歩10分
▢呉市立荘山田小学校/徒歩7分
▢認定こども園ししん/徒歩6分
物件データ
【所在地情報】
| 住所 |
呉市西辰川2丁目 |
交通 |
鉄管道路バス停 徒歩3分
|
| 小学校区 |
荘山田小学校 |
中学校区 |
片山中学校 |
【価格情報】
| 価格 |
3773万円 |
坪単価 |
40万円 |
| その他負担金 |
- |
負担金備考 |
- |
【土地・道路】
| 土地面積 |
312.59m²(94.5坪) |
建築条件 |
- |
| 接道 |
道路幅約4m
|
私道 |
- |
| セットバック |
- |
|
|
【建物】
| 完成(予定) |
2026年(令和8年)02月 |
構造 |
木造 |
| 建物面積 |
111.78m²(33.8坪) |
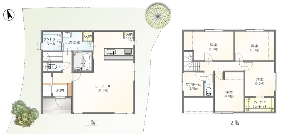
| 間取 |
4LDK SIC・ランドリールーム・サンルーム(2.5帖)(1階LDK19.6畳1室/2階洋室7畳1室/2階洋室6畳2室/2階洋室5.2畳1室/2階WIC1室) |
| 階数 |
地上2階 |
| リフォーム |
- |
【権利情報】
| 土地権利 |
所有権 |
借地権割合 |
- |
| 借地料 |
- |
権利金 |
- |
| 借地期間 |
- |
|
|
【制限事項】
| 都市計画 |
- |
建築許可理由 |
- |
| 建ぺい率 |
60% |
容積率 |
200% |
| 用途地域 |
1種住居 |
地目 |
宅地 |
| 最適用途 |
- |
建築条件 |
- |
| その他規制 |
- |
|
|
【現況・設備情報】
| 現況 |
未完成 |
明け渡し |
相談 |
| 利用用途 |
- |
特記事項 |
- |
| 設備 |
上水道 |
その他 |
共有地有
建築確認:第R07認広建セ00944号 |